The Glemsford - £475,000
Plot 67, The Spires
All photography and images are illustrative examples only. Internal photographs are indicative of typical homes by Bennett Homes and often depict rooms from an alternative property type.<br /> <br />
Council Tax Band
Yet to be determined
Annual Residents' Management Company Fee (estimated)
£225.00
Tenure
Freehold
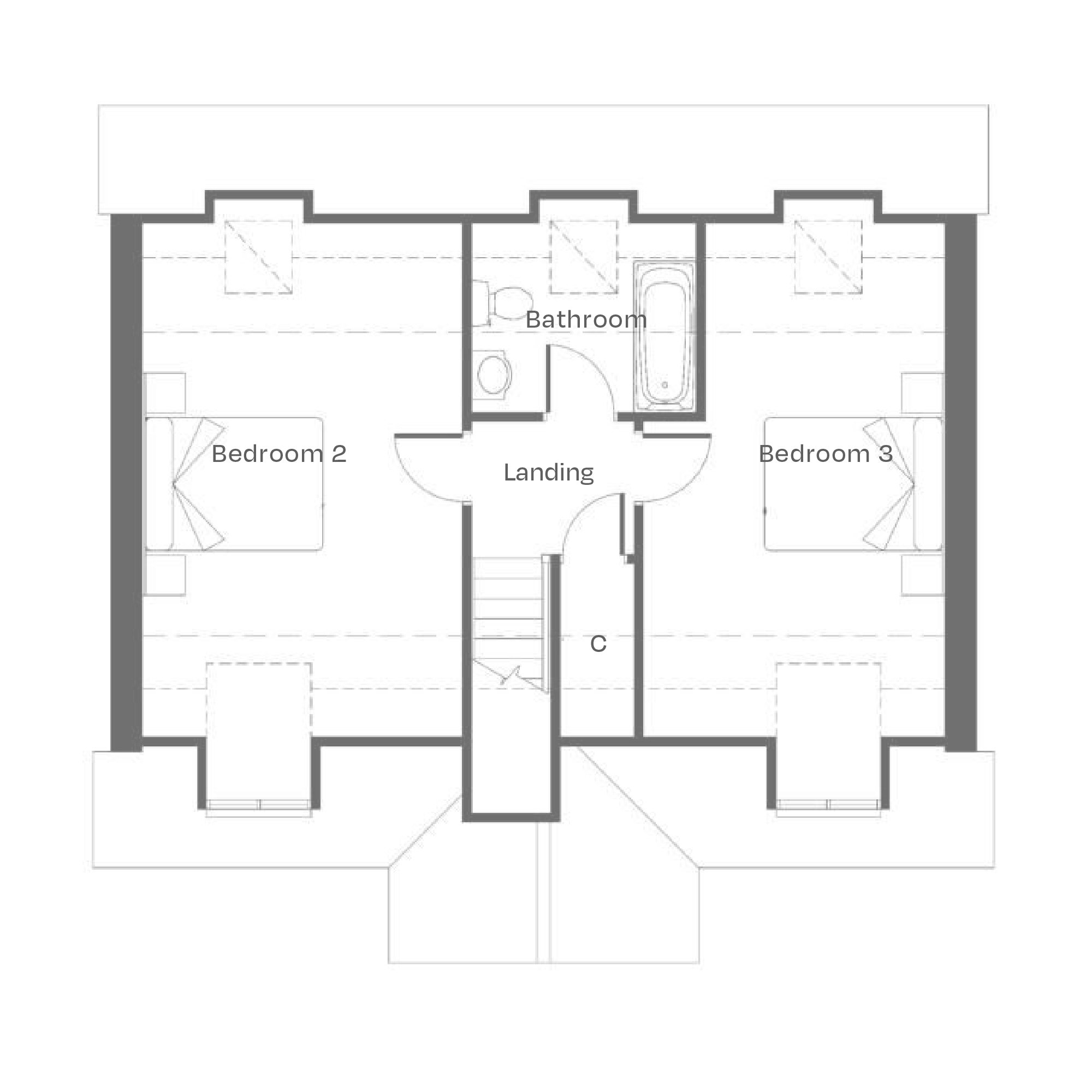
Floor Plans
Ground Floor
-
Kitchen/Dining Room
Metric: 7.21m x 2.81m Imperial: 23'7" x 9'2" -
Living Room
Metric: 4.51m x 3.55m Imperial: 14'9" x 11'7" -
Master Bedroom
Metric: 3.37m x 3.17m Imperial: 11'0" x 10'4"
First Floor
-
Bedroom 2
Metric: 5.68m x 3.36m Imperial: 18'6" x 11'0" -
Bedroom 3
Metric: 5.68m x 3.55m Imperial: 18'6" x 11'8"
Maximum dimensions are shown on all properties. Room dimensions and layouts may vary. All details are subject to change.
SITE PLAN
This layout plan is indicative only and subject to change. Boundary, landscaping and plot footpath details will vary. Some areas of open spaces are laid to wildflower.
Gallery
All photography and images are illustrative examples only. Internal photographs are indicative of typical homes by Bennett Homes and often depict rooms from an alternative property type.<br /> <br />
