Special Offer
Limited Time Special Price PLUS Flooring & Turf Included!
The Ixworth - £335,000
All photography and images are illustrative examples only. Internal photographs are indicative of typical homes by Bennett Homes and often depict rooms from an alternative property type. Terms & Conditions apply to all Offers & Promotions.
Council Tax Band
Yet to be determined
Annual Residents' Management Company Fee (estimated)
£115.00
Tenure
Freehold
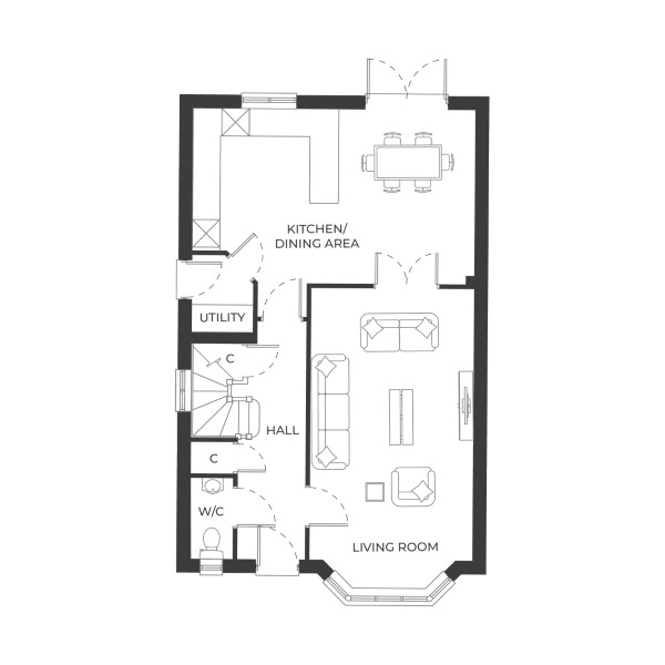
Floor Plans
Ground Floor
-
Kitchen/Dining Area
Metric: 6.10m x 3.75m Imperial: 20'0" x 12'3" -
Utility Room
Metric: 1.77m x 1.28m Imperial: 5'10" x 4'2" -
Living Room
Metric: 5.87m x 3.5m Imperial: 19'3" x 11'6"
First Floor
-
Master Bedroom
Metric: 4.07m x 3.41m Imperial: 13'4" x 11'2" -
Bedroom 2
Metric: 3.85m x 2.97m Imperial: 12'7" x 9'9" -
Bedroom 3
Metric: 3.01m x 2.45m Imperial: 9'11" x 8'0" -
Bedroom 4
Metric: 2.58m x 2.52m Imperial: 8'5" x 8'3"
Maximum dimensions are shown on all properties. Room dimensions and layouts may vary. All details are subject to change. Terms & Conditions apply to all Offers & Promotions.
SITE PLAN
This layout plan is indicative only and subject to change. Boundary, landscaping and plot footpath details will vary. Some areas of open spaces are laid to wildflower. Please note, some properties fall within the parish boundary of Carbrooke.
Gallery
All photography and images are illustrative examples only. Internal photographs are indicative of typical homes by Bennett Homes and often depict rooms from an alternative property type. Terms & Conditions apply to all Offers & Promotions.
