Special Offer
LIMITED TIME SPECIAL PRICE!
The Glemsford - £399,995
All photography and images are illustrative examples only. Internal photographs are indicative of typical homes by Bennett Homes and often depict rooms from an alternative property type. Terms & Conditions apply to all Offers & Promotions.
Council Tax Band
Yet to be determined
Annual Residents' Management Company Fee (estimated)
£195.00
Tenure
Freehold
Floor Plans
Ground Floor
-
Kitchen/Dining Room
Metric: 7.21m x 2.81m Imperial: 23'7" x 9'2" -
Living Room
Metric: 4.51m x 3.55m Imperial: 14'9" x 11'7" -
Master Bedroom
Metric: 3.37m x 3.17m Imperial: 11'0" x 10'4"
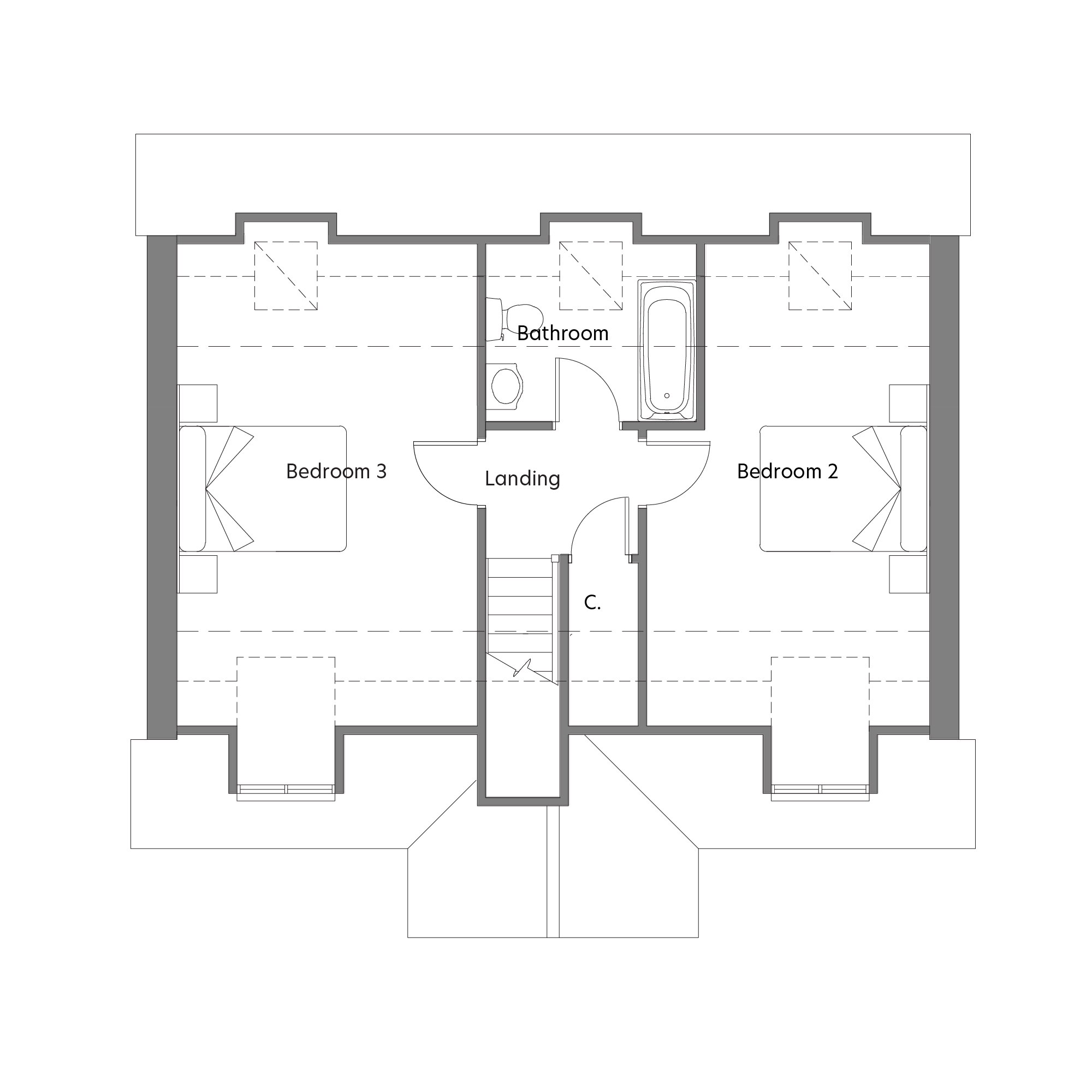
First Floor
-
Bedroom 2
Metric: 5.68m x 3.55m Imperial: 18'7" x 11'8" -
Bedroom 3
Metric: 5.68m x 3.36m Imperial: 18'7" x 11'0"
Maximum dimensions are shown on all properties. Room dimensions and layouts may vary. All details are subject to change. Terms & Conditions apply to all Offers & Promotions.
SITE PLAN
The Site Plan layout is indicative only and subject to change. Boundary landscaping and plot footpath details will vary. Some areas of open space are laid to wildflower.
Gallery
All photography and images are illustrative examples only. Internal photographs are indicative of typical homes by Bennett Homes and often depict rooms from an alternative property type. Terms & Conditions apply to all Offers & Promotions.
