The Ixworth - £410,000
All photography and images are illustrative examples only. Internal photographs are indicative of typical homes by Bennett Homes and often depict rooms from an alternative property type. Stamp Duty contribution offer - Terms & Conditions apply.
Council Tax Band
Yet to be determined
Annual Residents' Management Company Fee (estimated)
£195.00
Tenure
Freehold
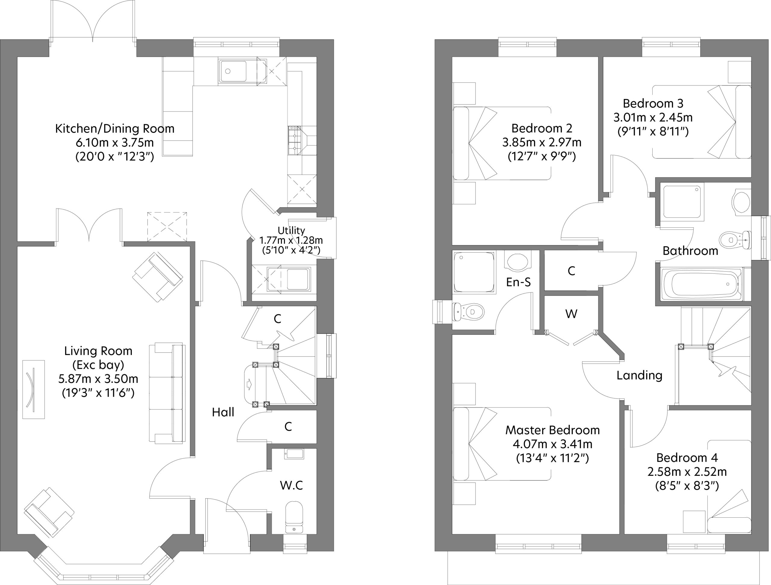
Floor Plans
Ground Floor
-
Kitchen/Dining Room
Metric: 6.10m x 3.75m Imperial: 20'0" x 12'3" -
Utility Room
Metric: 1.77m x 1.28m Imperial: 5'10" x 4'2" -
Living Room (excluding bay)
Metric: 5.87m x 3.50m Imperial: 19'3" x 11'6"
First Floor
-
Master Bedroom
Metric: 4.07m x 3.41m Imperial: 13'4" x 11'2" -
Bedroom 2
Metric: 3.85m x 2.97m Imperial: 12'7" x 9'9" -
Bedroom 3
Metric: 3.01m x 2.45m Imperial: 9'11" x 8'0" -
Bedroom 4
Metric: 2.58m x 2.52m Imperial: 8'5" x 8'3"
Maximum dimensions are shown on all properties. Room dimensions and layouts may vary. All details are subject to change.
SITE PLAN
The Site Plan layout is indicative only and subject to change. Boundary landscaping and plot footpath details will vary. Some areas of open space are laid to wildflower.
Gallery
All photography and images are illustrative examples only. Internal photographs are indicative of typical homes by Bennett Homes and often depict rooms from an alternative property type. Stamp Duty contribution offer - Terms & Conditions apply.
